La Gama Selection de Modularium dispone de tres modelos distintos, entre los que se encuentra el funcional y espacioso Modelo 401.
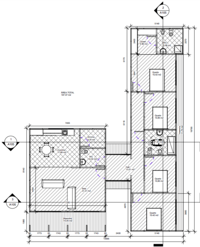
La vivienda tiene una superficie de 173 metros cuadrados, estableciéndose como una vivienda cómoda para una familia de tamaño medio.
Distribución espacial interna de la vivienda
El Modelo 401 de la Gama Selection dispone de un dormitorio principal con cuarto de baño particular, mientras que los otros dos dormitorios comparten uno.
Al tercer cuarto de baño se accede desde el salón de la vivienda, la estancia más amplia de la casa con más de 31 metros cuadrados. Este a su vez conecta con la cocina.
La vivienda dispone también de un porche de más de 14 metros cuadrados y de un recibidor de más de 17 metros cuadrados.
Conciencia medioambiental y sostenibilidad
Todas las viviendas desarrolladas por la empresa Modularium se rigen por una serie de puntos clave.
Concretamente, el Modelo 401 de la Gama Selection aúna los principios de sostenibilidad, eficiencia, diseño, tecnología, comodidad, salud y precio asequible, convirtiéndose en una interesante opción de vivienda de la mano de la empresa Modularium.
La eficiencia energética es un pivote fundamental en el desarrollo de las viviendas. No es para menos, sabiendo que el consumo energético tiene un fuerte impacto negativo en nuestra economía y en el planeta.
Para lograr esta optimización del gasto energético, el Modelo 401 se crea siguiendo el método clickhouse. De acuerdo con la empresa, se trata de un innovador sistema de arquitectura modular.
Este hace posible la integración de soluciones con sistemas de aislamiento inteligentes térmicos-acústicos, asegurando que se mantengan condiciones de confort óptimas en el interior de la vivienda, tanto de temperatura como de calidad del aire.
También se integran las últimas tecnologías del mercado en energías renovable, reduciendo la huella de carbono de la vivienda.
Por último, la casa también cuenta con sistemas de domótica avanzados que permiten poner la tecnología al servicio de la sostenbilidad y el confort de los propietarios de la vivienda.











