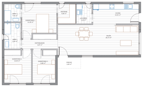
El modelo 111E es una combinación de varios módulos estandarizados, resultando en una vivienda de 111m2 en planta baja. Se trata de una vivienda modular ampliable y que parte de los 111.600€.
Su distribución interior está concebida para facilitar ampliaciones. Encontramos un amplio salón-comedor con grandes ventanales, cocina, 3 dormitorios (uno de ellos con baño particular), armario de almacenamiento, lavadero, distribuidor, baño principal, vestíbulo y porche.
Tanto la cocina como los aseos están equipados. La cocina incluye muebles, electrodomésticos (vitrocerámica, horno, nevera y campana extractora), fregadero y grifería, pudiendo elegir entre diversos acabados.
El aseo está equipado con un inodoro de tanque bajo, plato de ducha extraplano, mueble suspendido con encimera de vidrio, espejo y aplique de pared.
La estructura está realizada íntegramente en acero laminado IPE de 160 mm. Este es el caso tanto de las vigas, como de los pilares con refuerzos cada 60cm de tubo estructural de 60mm.
El modelo incluye fachada ventilada con cámara entre el acabado exterior y el cierre de la vivienda de 45 mm. Las divisiones interiores cuentan con un sistema de tabiquería seca, aislado acústicamente mediante lana de roca y doble placa de pladur.
La vivienda incluye además calefacción eléctrica, termo eléctrico de 150 litros y paneles solares con acumulador de 150 litros. Incluye además ventanas de aluminio con rotura de puente térmico RPT 60 y persianas térmicas.
Existe la posibilidad de ampliar la vivienda con porches, terrazas y dos modelos diferentes de garajes, de una o dos plazas. El garaje ser o no adosados.













