El modelo de vivienda unifamiliar N320 cuenta con hasta 321,5m2. Con grandes huecos acristalados y dos porches contrapuestos; la vivienda es ideal para sentir el exterior con el máximo confort. Su precio es de 643.000€
Esta vivienda, de gran espacialidad, se organiza en dos plantas; correspondiendo la planta baja a la zona de día y la superior a la de noche, en un esquema clásico de distribución.
En la planta baja se encuentran el salón comedor y la cocina que, separados por el núcleo de servicios y comunicación, se prolongan mediante dos terrazas cubiertas de generosas dimensiones. Estos porches, ubicados en lados opuestos, protegen del sol y de la lluvia, lo que permite al usuario disfrutar de la conexión con el exterior durante todo el año.
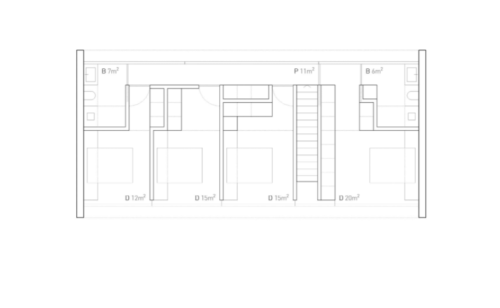
En la planta superior se sitúan cuatro dormitorios dobles, uno de ellos con baño propio, con acceso a una gran terraza sobre el porche. Esta planta, abierta mediante grandes paños de vidrio en su mayor dimensión, goza de la máxima luminosidad.
Las texturas y materiales de cada uno de los seis acabados propuestos están en sintonía con el carácter acogedor, contemporáneo y equilibrado de la vivienda. Los acabados disponibles son: aluminio, marfil, arena, grafito, antracita y ónix.















