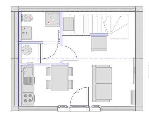
La Casa Modular T-Cabin es una vivienda de tipo unifamiliar. Tiene una superficie de 52m2 repartidos en dos plantas y está construida con madera.
Una solución perfecta para fines turísticos como resorts y campings. CABIN se adapta muy bien como una segunda casa en la que pasar días increíbles fuera de la ciudad.
Además, se puede añadir un módulo adicional de forma opcional.
La planta baja cuenta con un amplio salón-comedor, una cocina y un baño.
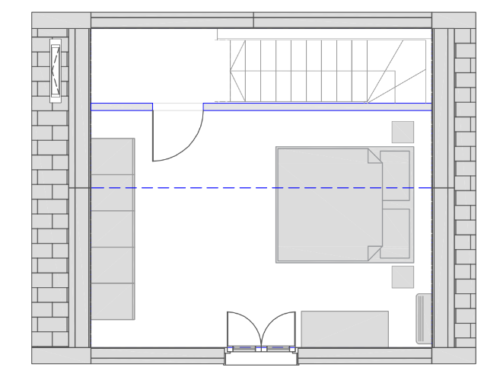
La primera planta cuenta con un dormitorio estilo suite, además de una terraza.
Existe una amplia gama de materiales y acabados a elegir para que la adaptes al entorno.
Por último, tiene una certificación energética excelente, de Clase A+.














