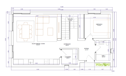
La Casa Prefabricada de Hormigón H118 Duplex es una vivienda de tipo unifamiliar construida con hormigón. Tiene una superficie total de 118m2, repartidos en dos plantas.
En la planta inferior se encuentra un amplio salón-comedor-cocina, un baño, una habitación doble, un cuarto de lavado e incluso un porche exterior alrededor de toda la vivienda.
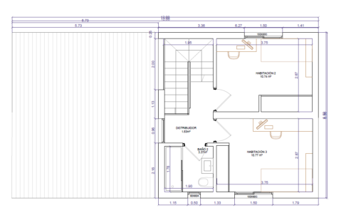
En la planta superior tenemos otras dos habitaciones y un baño.
Además, el inteligente diseño y distribución de los ventanales dotan a la vivienda de una gran iluminación natural.
Finalmente, tiene una certificación energética excelente, de clase A+.













