Simon de Kolbeg, es una vivienda pasiva que destaca por su increíble eficiencia energéticas, ahorro y cuidado por el planeta.
Los valores de la empresa alicantina, salud, ahorro y preocupación por el medioambiente, quedan reflejados en esta casa, que busca convertirse en el hogar de los sueños de una familia que persiga el diseño y la sostenibilidad.
Es además una vivienda de construcción sostenible, dado el origen de sus materiales y el desarrollo de sus procesos constructivos. Así, el modelo Simon se configura como una vivienda de entramado de madera, de origen sostenible, con un precio que parte de los 1.200 euros por metro cuadrado.
Distribución espacial la casa pasiva Simon
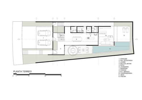
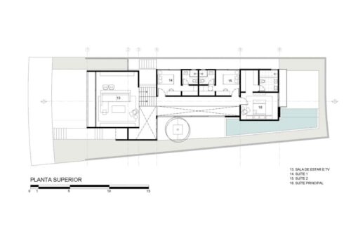
Se trata de una casa de dos plantas, espaciosa y personalizable a gusto de los futuros propietarios. A pesar de posibles cambios a deseo de los dueños, la empresa ofrece una sugerencia de estructura interna. De acuerdo con esta, la vivienda contaría con tres dormitorios y cuatro cuartos de baño.
En la planta baja se sitúa un salón-comedor, unido a una cocina abierta. Esta área incluye despensa, lavandería y un cuarto de baño.
En esta misma planta habría otro cuarto de baño y un porche que podría incluir una zona de barbacoa junto a la piscina, donde organizar días de verano con amigos y familia.
Subiendo al primer piso, encontraríamos los tres dormitorios, cada uno con cuarto de baño particular. En esta planta habría también una sala de estar con televisión donde pasar las tardes en familia.
La vivienda incluye también un garaje con espacio para dos vehículos.
Eficiencia y sostenibilidad en la casa pasiva Simon
En cuanto a la eficiencia energética de la vivienda, nos encontramos ante una casa que cumple altos y estrictos estándares. En el proceso de construcción de la vivienda se analizan y consideran los materiales teniendo en cuenta las condiciones climáticas circundantes.
De esta manera, es posible optimizar el gasto energético, reduciendo tanto la energía necesaria, como los gastos a los que tendrá que hacer la familia.
En la vivienda pasiva Simon destaca un óptimo aislamiento. La casa incluye un sistema SATE, que unido al entramado de madera tipo canadiense y la hermetización, asegura un confort constante para los habitantes.












