Bilbao es una casa prefabricada de 124 m2 a los que se unen los 22 m2 de porches y balcón. Es una construcción de madera con un precio inicial de 99.500€.
El modelo básico incluye paredes exteriores de 179 mm e interiores de 70 mm, además de tejado aislado de tejas. Por 109.500€ encontramos otro modelo de paredes exteriores de 199 mm e interiores de 90 mm, además del tejado de teja aislado.
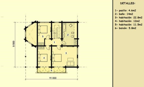
Los 124 m2 de la vivienda se encuentran divididos en dos plantas. En el nivel inferior encontramos un amplio salón-comedor conectado a la cocina. En este piso encontramos también un aseo y una habitación de suso múltiples, además de dos porches.
En el primer piso, hallamos 3 espaciosos dormitorios, además de otro baño y un balcón.
La vivienda prefabricada se realiza teniendo en cuenta un máximo respeto al medio ambiente, persiguiendo la máxima eficiencia energética mediante un adecuado aislamiento térmico y acústico.
El precio incluye el montaje e instalaciones de electricidad y fontanería, pero no el IVA (10%) ni el transporte.














