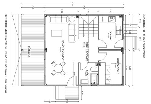
Natura Blu 102 es una Casa Modular de madera de 76m2 en dos pisos, con opción a terraza, porche, garaje, trastero y pérgola de madera. El plazo de construcción es de 120 días como máximo.
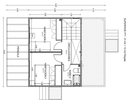
En total, la Vivienda dispone de 3 dormitorios y 2 baños. Además, encontramos el salón-comedor y la cocina.
Se trata de una Vivienda de clasificación energética A que incluye fachada ventilada, tarima parquet e instalación sanitaria y eléctrica, baños y cocina completamente equipados, entre otros.
Incluye también transporte y montaje de módulos en toda la península. La vivienda tiene 10 años de garantía.
Es posible realizar la Vivienda a medida y hay diferentes opciones de personalización de la fachada, del exterior y ciertas característica de casa pasiva.
De esta manera, es posible añadir lámina Air-guard, aislante PIR-AK, calefacción por biomasa, aerotermia, ventilación mecánica con recuperación de calor y cristales bajo emisivos.
Las fotos son orientativas.

















