La Casa Modular A-Young+ es una vivienda de tipo unifamiliar. Tiene una superficie de 75m2 repartidos en dos plantas y está construida con madera.
Puede destinarse como casa de vacaciones o como vivienda que puede crecer y cambiar junto con los sueños y necesidades de sus propietarias/os.
Además, se puede añadir un módulo adicional de forma opcional.
La planta baja cuenta con un amplio salón-comedor, una cocina completa, un baño y un dormitorio estilo suite.
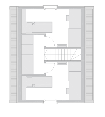
La primera planta cuenta con dos dormitorios individuales.
Existe una amplia gama de materiales y acabados a elegir para que la adaptes al entorno.
Por último, tiene una certificación energética excelente, de Clase A+.














