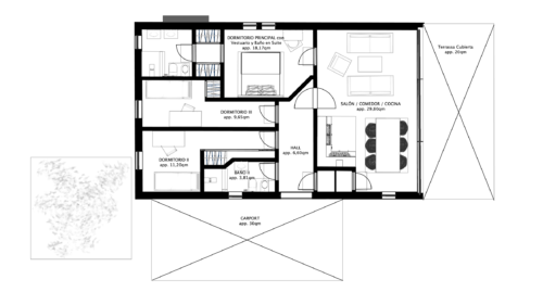
Modelo ADVIK III: Casa Vivienda en un estilo moderno y minimalista, terraza cubierta, carport (parking cubierta), 3x dormitorios, 2x baños de diseño, salón / comedor y cocina abierta o cerrada, app. 215qm Construcción en total, app. 110qm Construcción Casa, app. 85qm útiles casa.
Casa que cumple con las requisitas de un PassivHaus, ahorro en consumo de energía hasta 80%, Calificación Energética en A / A+, AEROTERMIA, TECHO RADIANTE, FACHADA VENTILADA, VENTANAS PANORÁMICAS, SISTEMA VENTILACIÓN INTERIOR, PUERTA DE ENTRADA PASSIVA, BAÑOS DE DISEÑO, TERRAZA EN WPC…
Precio Llave en Mano: desde 235.000 Euros + I.V.A.
Disponible en todo España y Isla de Mallorca.
Construcción a Medida posible.
Casa Modular Sostenible ADVIK III

Características Casa Modular Sostenible ADVIK III
Calidades: Altas
Materiales: Acero
Estilo: Moderno
Dormitorios: 3 Dormitorios
Baños: 2 Baños
Plantas: 1 Planta
Galería - Casa Modular Sostenible ADVIK III
También podría interesarte

Compartir
















