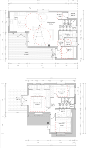
La Casa Modular Calpe es una vivienda unifamiliar moderna de dos plantas con un diseño muy cuidado y vistoso. Tiene una superficie total de 140m2, además de dos terrazas, de 29m2 y 12,40m2 respectivamente.
La planta inferior está casi completamente abierta, con un salón-comedor y cocina muy espaciosos. Cuenta también con un baño, un lavadero e incluso un despacho. Además, en la parte exterior existe una extensa terrasa que sirve como garaje. En la planta superior tiene dos habitaciones normales, y una estilo suite con su propia terraza, además de un segundo baño.
La vivienda está fabricada con acero y dispone de muy buena iluminación natural, gracias a la cantidad de ventanas y las puertas hechas de cristal.













