La vivienda Carbono tiene 2 plantas que suman un total de 368m2. Está configurada como un juego de volúmenes dispuestos de forma perpendicular en dos alturas, dónde destacan los grandes ventanales que permiten la mezcla del interior con el exterior. El tiempo estimado medio para su construcción es de 5 meses.
Las diferentes plantas en blanco y negro destacan entre el paisaje generando un claro contraste, unificados con un material cerámico que simula el acero corten.
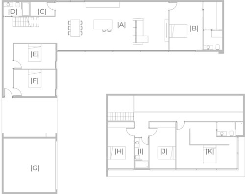
En la planta baja encontramos 3 dormitorios además del salón cocina, la galería y el garaje para guardar su coche. Mientras que en la primera planta se encuentran los 3 dormitorios restantes, uno principal con vestidor, y un baño.
Aplicamos un sistema estructural mixto (acero y hormigón) que garantiza durabilidad y alta resistencia. Conseguimos una vivienda altamente energética al eliminar los puentes térmicos. Estructura completamente estanca y con una altísima resistencia a esfuerzos ocasionados por agentes climáticos como, lluvia, viento, nieve…
El sistema constructivo se puede adaptar o modificarse dependiendo del modelo de vivienda.















