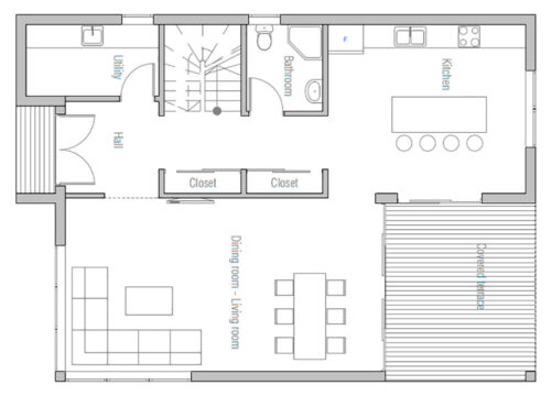
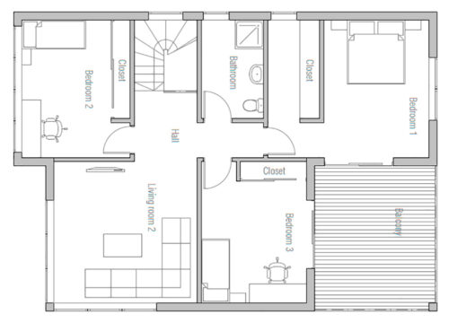
La Casa Modular Córdoba es una vivienda de tipo unifamiliar. Tiene dos plantas y está construida con hormigón.
La planta baja cuenta con un salón-comedor, una cocina completa, un baño, y un pequeño porche en la entrada.
La primera planta tiene dos dormitorios individuales y uno estilo suite, una sala de estar, un baño, un vestidor y una terraza.
Además, el inteligente diseño y el uso de los ventanales dotan a la vivienda de una gran iluminación natural durante la mayor parte del día.
Por último, tiene una certificación energética excelente, de Clase A+.














