Cube 250m2 es una de las Viviendas Modulares más grande que ofrecemos. Como su nombre indica, cuenta con 250m2, distribuidos en dos plantas y una terraza de casi 50m2. Su precio es de aproximadamente 239,000€.
Es posible adquirir el pack llave en mano por 290.950€ (10% de IVA incluido).
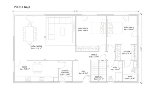
El modelo está disponible con una distribución de 5 o 6 dormitorios, y 3 o 4 baños.
En la planta baja encontramos dos de los dormitorios, uno de ellos con vestidor y aseo particular. Hay además otro baño, la cocina conectada con un lavadero y el salón-comedor.
Si subimos las escaleras nos encontramos con otros tres dormitorios, uno con aseo particular y dos con vestidor. Además en esta primera planta hay otro baño, y también se sitúa la terraza.
Cuenta con un forjado de hormigón armado sobre chapa y su estructura es de acero al carbono laminado en caliente, acabado con imprimación anti-corrosión. Su fachada cuenta con un panel de cerramiento de alto rendimiento, así como diversos estructuras metálicas de refuerzo.
Incluye instalaciones de fontanería, electricidad y Pladur. Los cristales son Climalit, con sistema antifragmentación, rotura de puente térmico y Planitherm. Incluye persianas eléctricas en los dormitorios, radiadores con aerotermia y leds de bajo consumo montados en sistema Downlight.
Cuenta con un sistema de aislamiento acústico y térmico formado por la combinación de fibra de vidrio, lana de roca, polietileno extruido y manta de aislamiento reflexivo.
Ciertos acabados exteriores e interiores son personalizables.













