Cube Premium 300m2 es una Vivienda Modular que demuestra las posibilidades de la Construcción Modular. Como su nombre indica, cuenta con 300m2, distribuidos en dos plantas y un porche de más de 30m2. Su precio es de 340.400€.
Es posible adquirir el pack llave en mano por 404.140€. (10% de IVA incluido).
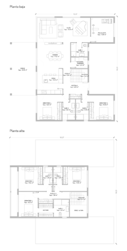
El modelo cuenta en total con 5 dormitorios y 6 baños.
En la planta baja encontramos dos de los dormitorios, ambos con baño particular. Hay además otro baño, una cocina conectada con el comedor, un amplio salón, una sala polivalente y un lavadero.
En el primer piso nos encontramos con otros tres dormitorios, todos ellos con aseo particular y uno con vestidor.
Cuenta con un forjado de hormigón armado sobre chapa y su estructura es de acero al carbono laminado en caliente, acabado con imprimación anti-corrosión. Su fachada cuenta con un panel de cerramiento de alto rendimiento, así como diversos estructuras metálicas de refuerzo.
Incluye instalaciones de fontanería, electricidad y Pladur. Los cristales son Climalit, con sistema antifragmentación, rotura de puente térmico y Planitherm.
Además, incluye persianas eléctricas en toda la casa, suelo radiante para calefacción y refrigerante alimentado por bomba de calor y leds de bajo consumo montados en sistema Downlight.
Cuenta con un sistema de aislamiento acústico y térmico formado por la combinación de fibra de vidrio, lana de roca, polietileno extruido y manta de aislamiento reflexivo.
Los acabados exteriores e interiores son personalizables.














