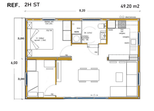
La Casa Modular de dos habitaciones es una vivienda modular móvil de 49,20m2 distribuidos en planta baja. Su diseño es moderno y minimalista y está fabricada en acero.
La casa cuenta con un dormitorio doble y otro individual, un cuarto de baño, una cocina y un espacioso salón-comedor.
En el exterior colocamos (Viroc) aplacado en cemento y madera tratada con auto clave sin mantenimiento.
En el interior encontramos paredes en pladur, azulejos en baños y cocina y comedor combinación de pladur con madera con diferentes opciones y distribuciones en cuanto a las habitaciones y acabados.
Cuenta con tratamiento ignífugo con calificación energética térmica clase » A» , con la opción de diferentes acabados, tanto interior como exterior.
Es una vivienda personalizable.





















