Esta casa de estilo moderno, es una construcción modular de 95 m2 con diseño en terraza y exterior en acabado monocapa, madera o similar a determinar por el cliente. El plazo de construcción es de 85 días, cumpliendo CTE y normativa urbanística. Su precio es de 118.530€.
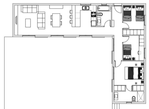
Esta vivienda cuenta con una planta en la que encontramos 3 dormitorios y 2 baños, un salón – comedor y una cocina, incluyendo muebles de cocina completos con península, encimera porcelánica, horno, vitro y campana. Los dormitorios cuentan con armarios de 150 cm.
Cuenta con una puerta principal acorazada y ventanas de altas prestaciones, con cámara 4/16/4 rellena de gas de argón con persianas.
La vivienda está calificada con un nivel de eficiencia energética de A+. Tiene un sistema de aislamiento térmico exterior (SATE).
También es posible construir este modelo en madera y el interior en placa de yeso laminado, y disponer de una bomba de calor o recuperador de calor para la climatización de la casa.













