La Casa Modular Barn-129 es una vivienda de tipo unifamiliar construida con madera. Tiene una superficie total de 142m2, repartidos en dos plantas.
En la planta inferior se encuentra un amplio salón, un comedor, una cocina completa, un despacho, un baño y un pequeño porche exterior.
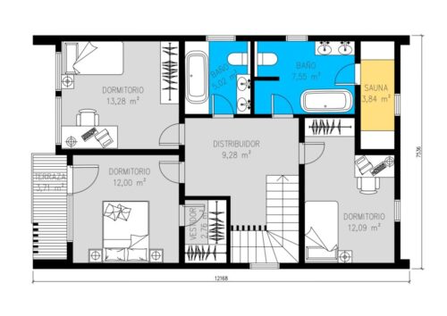
En la planta superior cuenta con dos habitaciones individuales, una habitación estilo suite, dos baños, una terraza e incluso una sauna.
El inteligente diseño y distribución de los ventanales dotan a la vivienda de una gran iluminación natural.
Además, tiene una certificación energética excelente, de clase A+.













