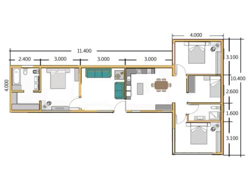
El modelo de vivienda unifamiliar Huesca distribuye sus 90m2 en una planta baja, que dispone de todo lo necesario para el día a día. Su precio es de 114.070€
La puerta principal nos sitúa en el salón de la casa, junto al cual se encuentra la cocina-comedor en otro espacio separado. En la parte izquierda de la casa se encuentra el dormitorio principal, que dispone de vestidor y baño privado. El resto de habitaciones se encuentran en la parte derecha, dos de ellas con cama de matrimonio y otra individual. El baño principal, con pie de ducha, se encuentra entre ellas.
Este modelo está fabricado con el sistema de construcción entramado ligero por lo que se puede revestir de diferentes maneras: pladur, madera, azulejo, piedra o incluso canexel.
Su definición mediante un sistema multicapa supone una herencia del método constructivo canadiense y sus elementos, en base a los principios del panel sándwich, se complementan de forma consecutiva otorgando unas propiedades aislantes y resistentes únicas.
Además, en el suelo o pavimento de la casa hacemos una cámara de aislamiento para poder tener una misma temperatura durante todo el año.
En cuanto a las puertas, en la parte exterior utilizamos madera estratificada y en la parte interior madera maciza. Para la pintura, utilizamos barniz tipo “Lasur al agua” que es de poro abierto y protege la madera del intemperie.












