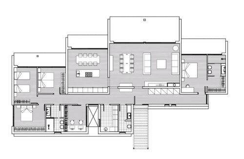
La Casa Gerona es una Vivienda de hormigón celular a cuatro vientos de 310 m2, distribuidos en una planta de diseño tradicional.
La vivienda está dividida en 4 dormitorios, 3 baños completos, comedor – sala de estar, cocina, lavadero y estudio.
La construcción Modular incluye cimentación mediante losa de hormigón de 25 cm de canto y fachadas mediante bloque celular Ytong de 30 cm de espesor. Incluye además, entre otros, cerramientos exteriores, puertas, instalación eléctrica completa en interior y distribución de agua fría y caliente con tubería de polietileno reticulado en baños y cocina.
Incluye también calefacción mediante radiadores impulsado por aerotermia por aerotermia y depósito de ACS con capacidad de 190 litros, sanitarios y grifería y porche de madera tratada.
















