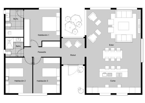
Vivienda unifamiliar de una planta que reúne 115m2. Está construida en dos espacios diferentes, uno para las zonas de día y otro para los dormitorios, unidos en el centro por un pequeño hall. Su precio es de 202.500€
La entrada a la vivienda se encuentra en el centro de la casa, dando paso a un pequeño hall que separa las dos estancias. En la parte izquierda se encuentran las habitaciones de noche, como son los 3 dormitorios, uno principal con baño propio y los otros 2 con un baño compartido. En la parte derecha encontramos el salón-comedor y cocina, todo unido en un espacio amplio. En el exterior podrá disfrutar de una agradable terraza con piscina.
La fachada está hecha con panel de cemento Viroc, un panel composite de superficie plana. Compuesto de una mezcla de partículas de madera y cemento comprimida y secada. Además de funcional y versátil es estético, proporcionando una buena apariencia al exterior de la casa.
En cuanto a las ventanas son de aluminio manteniendo los estándares de calidad como el perfil mínimo, rotura de puente térmico, vidrio con cámara y con tratamiento diferenciado según la insolación para mejorar la capacidad térmica de la vivienda al máximo.
Nuestras viviendas vienen equipadas con puerta tipo Block, las cuales garantizan una unificación de acabado al máximo detalle olvidándonos de destonificaciones excesivas, cambios de fondos y dispersión de medidas. Además, disponemos de puertas correderos para aprovechar mejor la superficie de la casa.













