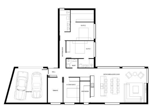
Este modelo de vivienda cuenta con una planta de 190m2. La casa está construida en forma de T, estando separadas las zonas de día de las de noche. Su precio es de 285.200 €
En primer lugar, al acceder a la vivienda encuentras un recibidor que da acceso al resto de las estancias, el salón-comedor-cocina, todo junto en un amplio espacio y un baño principal. Por otro lado encontramos las 4 habitaciones, 2 en suite con baño propio. Dispone además, de garaje con capacidad para 2 coches.
Empleamos un panel de cemento Viroc en la fachada, un panel composite de superficie plana, que está compuesto de una mezcla de partículas de madera y cemento comprimida y secada. Además de funcional y versátil es estético, proporcionando una buena apariencia al exterior de la casa.
Las ventanas son de aluminio manteniendo los estándares de calidad como el perfil mínimo, rotura de puente térmico, vidrio con cámara y con tratamiento diferenciado según la insolación para mejorar la capacidad térmica de la vivienda al máximo.
Asimismo, la vivienda está equipada con puertas tipo Block. Garantizan una unificación de acabado al máximo detalle olvidándonos de destonificaciones excesivas, cambios de fondos y dispersión de medidas. Además, disponemos de puertas correderos para aprovechar mejor la superficie de la casa.














