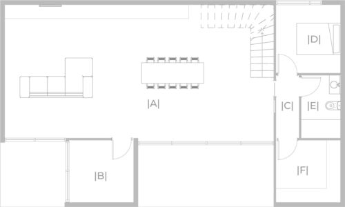
Hades es una vivienda unifamiliar de 170m2 repartidos en 2 plantas. Tiene un tiempo medio de 5 meses para su ejecución.
La planta baja está formada por las zonas de día con grandes cristaleras: un amplio salón, el comedor y la cocina. Además de un gran dormitorio principal con vestidor, un baño y una habitación extra que puede ser usada como despacho.
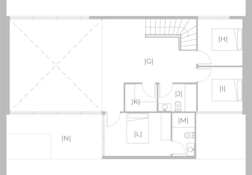
La escalera nos conduce a la segunda planta que se comunica con el salón a doble altura, zona más privada con 3 habitaciones y dos baños.
La vivienda cuenta con un sistema estructural mixto (acero y hormigón) que garantiza durabilidad y alta resistencia. Eliminamos por completo los puentes térmicos consiguiendo una vivienda energéticamente eficiente. Estructura completamente estanca y con una altísima resistencia a esfuerzos ocasionados por agentes climáticos como, lluvia, viento, nieve…
El sistema constructivo puede adaptarse o modificarse dependiendo del modelo de vivienda.
















