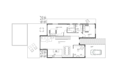
La Casa Modular House 340 es una vivienda de tipo unifamiliar, construida con acero. Con una superficie total de 140m2 en una única planta. Es una casa ideal para familias pequeñas.
Cuenta con un espacioso salón-cocina, una habitación individual, una habitación doble y dos baños. Además de un porche en el exterior que sirve como garaje.
Tiene un diseño moderno con ventanales que dotan a la vivienda de una muy buena iluminación natural. Su clasificación energética es excelente, de clase A+.













