El modelo Manzanares tiene un total de 121m2 repartidos en 2 plantas y cuenta con un porche de 4,5m2. Su precio es de 184.710€ y 210.980€ si elige el modelo pasivo.
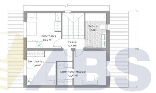
En la planta baja se encuentran las zonas de día como el salón-comedor y la cocina, acompañados de un baño y un dormitorio. Al subir las escaleras a la primera planta encontraremos 3 dormitorios más, el principal con vestidor propio y un baño en común para las 3 habitaciones.
Las ventanas de la vivienda son de PVC con color blanco de serie. Cuentan con triple acristalamiento y doble cámara de argón (gas aislante), con factor solar predefinido y persianas aislantes motorizadas en color carpintería. La puerta de entrada es de seguridad de material PVC con sistema de gran hermeticidad.
Las puertas interiores pueden ser de madera maciza, lacadas o barnizadas. Los frentes de armario tienen puertas correderas de tablero melaminado y separadores, barra y balda de maletero. Los dormitorios tienen un armario empotrado cada uno cuyo revestimiento interior es de tablero melaminado.
Climatización por aerotermia mediante conductos a todas las estancias y ventilación forzada con recuperación de calor.













