El modelo 63A es una combinación de módulos estandarizados de 63m2 construidos. Se trata de una casa modular de planta baja, ampliable y que parte de los 71.000€.
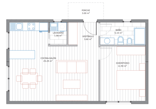
Su distribución interior está diseñada de manera que sea sencilla una posible futura ampliación. Encontramos un salón-comedor-cocina de 29,25 m2, un dormitorio de 12,50 m2, un lavadero/despensa de 1,90 m2, un baño de 5,10 m2, un armario de almacenamiento, entrada de 3,60 m2 y porche.
El aseo está equipado con un inodoro de tanque bajo, plato de ducha extraplano, mueble suspendido con encimera de vidrio, espejo y aplique de pared.
La cocina también está completamente equipada con muebles, electrodomésticos (vitrocerámica, horno, nevera y campana extractora), fregadero y grifería, pudiendo elegir entre diversos acabados.
La estructura está realizada íntegramente en acero laminado IPE de 160 mm. Este es el caso tanto de las vigas, como de los pilares con refuerzos cada 60cm de tubo estructural de 60mm.
El modelo incluye fachada ventilada con cámara entre el acabado exterior y el cierre de la vivienda de 45 mm. Las divisiones interiores cuentan con un sistema de tabiquería seca, aislado acústicamente mediante lana de roca y doble placa de pladur.
La vivienda incluye además calefacción eléctrica, termo eléctrico de 150 litros y paneles solares con acumulador de 150 litros. Incluye además ventanas de aluminio con rotura de puente térmico RPT 60 y persianas térmicas.
Existe la posibilidad de ampliar la vivienda con porches, terrazas y dos modelos diferentes de garajes, de una o dos plazas. El garaje ser o no adosados.














