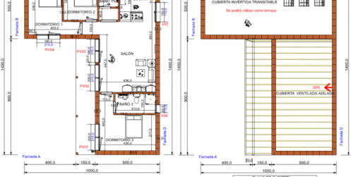
Este modelo de vivienda tiene una planta baja con un total de 111m2. Cuenta con 3 dormitorios, 2 baños, un salón, la cocina y un porche. El precio de esta casa es de 112.029’68€.
La vivienda está calificada como eficiente energéticamente. Fachada exterior en mortero de cemento Sistema SATE, el mejor sistema para eliminar puentes térmicos. El interior en panel yeso o friso de madera machihembrada. Pavimentos de piezas de gres antideslizante, parqué y suelos laminados de calidad media-alta.
La carpintería exterior es de PVC de alta calidad y cuenta con un sistema de triple acristalamiento y poder de aislamiento, cumpliendo con el estándar de casa pasiva.
El cliente tiene la posibilidad de personalizar el proyecto a su gusto, adaptando el modelo de la vivienda a sus necesidades y el terreno en el que será ubicada.
















