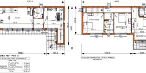
Esta vivienda está construida en dos plantas con un total de 173’78m2. En ella podemos encontrar 3 dormitorios, 3 baños, el salón, la cocina y una despensa. Además cuenta con terraza y balcón hacia el exterior. Su precio es de 160.977,89 €.
La vivienda tiene una fachada exterior en mortero de cemento Sistema SATE, el mejor sistema para eliminar puentes térmicos. El interior en panel yeso o friso de madera machihembrada. Pavimentos de piezas de gres antideslizante, parqué y suelos laminados de calidad media-alta. Por todo ello, la casa está considerada como altamente eficiente en términos de energía.
Cumple también con los estándares de casa pasiva, pues la carpintería exterior es de PVC de alta calidad. Cuenta, además, con un sistema de triple acristalamiento y poder de aislamiento
Es posible adaptar el proyecto a su gusto, personalizando el modelo de la vivienda a su medida y el terreno.
















