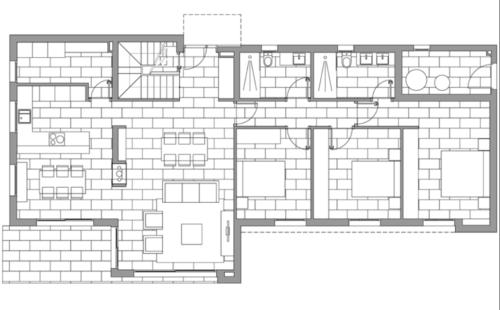
La Casa Modular Montgat es una vivienda unifamiliar. Tiene una superficie total de 191m2 repartidos en dos plantas y está construida con hormigón.
Además, se puede personalizar con una gama amplia de acabados y materiales.
La planta baja cuenta con un amplio salón-comedor, una cocina completa, tres dormitorios: dos individuales y uno estilo suite, un trastero y dos baños.
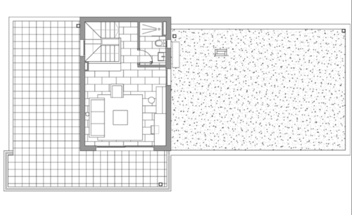
La primera planta cuenta con una sala de estar, un baño, y una amplia terraza.
El uso de los ventanales dotan a la vivienda de una gran iluminación natural.
Por último, tiene una certificación energética excelente, de Clase A+.















