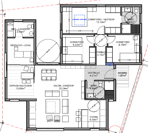
El modelo Óptima 126 se organiza en una planta baja que recoge todo lo esencial en 126m2. Su diseño en forma de U es una propuesta que combina los distintos módulos de la casa para crear un espacio central tipo jardín.
Al acceder a la casa nos encontramos en el vestíbulo que da acceso inmediato al salón-comedor y cocina de la vivienda. A la izquierda del vestíbulo se encuentra el baño principal y a la derecha un pasillo que conduce a las habitaciones. En total dispone de 3 habitaciones, teniendo una principal con baño y vestidor privados. Además cuenta con una sala Multiusos que puede transformarse en una oficina para el teletrabajo o un cuarto de juegos.
Al tratarse de una construcción modular podrá modificar el modelo como desee para adaptarlo a las circunstancias de su familia, actuales y futuras.
Los materiales empleados para la construcción de la vivienda han sido seleccionados por su garantía de larga duración. El recubrimiento exterior de la casa no se ve alterado por fenómenos meteorológicos como el sol o la lluvia.
Una vez su vivienda haya sido terminada en fábrica se tardará un máximo de 2 días en transportarla e instalar los módulos en el terreno.












