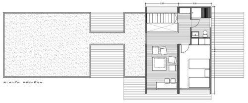
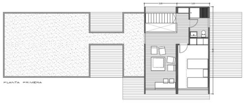
Modelo de vivienda unifamiliar de 150m2 repartidos dos plantas. Este modelo es una de nuestras soluciones habitacionales para familias que ya disponen de un terreno. Es ideal para familias o estudios y puede ser modificado para adaptarlo a sus necesidades.
En la planta baja encontramos todo lo esencial para las actividades de día como el salón-comedor y la cocina. Además, en el otro extremo de la planta encontramos el baño principal y dos habitaciones, una con baño particular. Al subir las escaleras para la primera planta, veremos un pequeño salón de estar acompañado de una habitación y un baño.
Los materiales empleados para la construcción de la vivienda han sido seleccionados por su garantía de larga duración. El recubrimiento exterior de la casa no se ve alterado por fenómenos meteorológicos como el sol o la lluvia.
Una vez su vivienda haya sido terminada en fábrica se tardará un máximo de 2 días en transportarla e instalar los módulos en el terreno.













