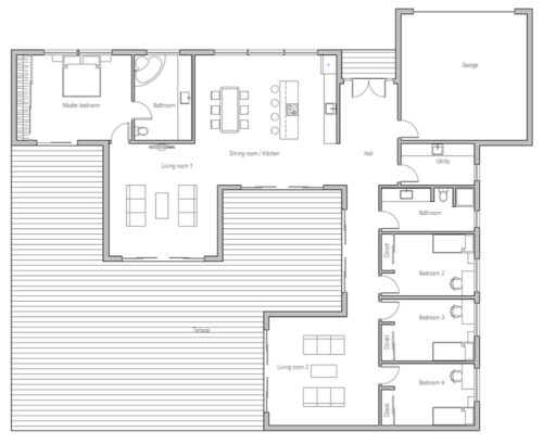
La Casa Modular Pizarro es una vivienda de tipo unifamiliar. Está construida con hormigón.
Cuenta con 3 habitaciones individuales y una estilo suite, un salón, una sala de estar, una cocina-comedor amplia, dos baños e incluso un garaje.
Además, el inteligente diseño y el uso de los ventanales dotan a la vivienda de una gran iluminación natural durante la mayor parte del día.
Por último, tiene una certificación energética excelente, de Clase A+.













