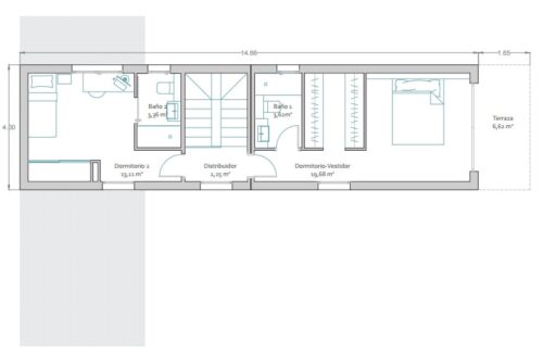
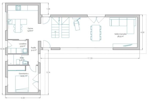
Este modelo de vivienda unifamiliar tiene un total de 145,94m2 repartidos en 2 plantas. En la planta baja encontramos un salón-comedor en un espacio amplio, la cocina con acceso al lavadero, un baño principal y un dormitorio. La primera planta, por su parte, dispone de otros 2 dormitorios, ambos con baño propio y uno con vestidor.
La vivienda cuenta con ventanales y ventanas de PVC (color blanco de serie). Estas disponen de acristalamiento triple y doble cámara de argón (gas aislante), con factor solar predefinido. La puerta de entrada, de seguridad, es de PVC con sistema de gran hermeticidad. Las ventanas incluyen persianas aislantes motorizadas en color carpintería.
Las puertas interiores de la casa son de madera maciza, lacadas o barnizadas. Los frentes de armario tienen puertas correderas de tablero melaminado y separadores, barra y balda de maletero. Los dormitorios tienen un armario empotrado cada uno cuyo revestimiento interior es de tablero melaminado.
La climatización es por aerotermia mediante conductos a todas las estancias y ventilación forzada con recuperación de calor. Agua Caliente Sanitaria por aerotermia.
















