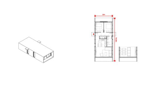
Este modelo de vivienda de hormigón cuenta con 72m2 distribuidos en una única planta a los que se suman 15m2 de porches. Se trata de una construcción modular, formada por varios módulos de hormigón de 3m x 6m x 1,2m.
En el interior encontramos un salón-comedor que comparte espacio con la cocina, además de un baño, un lavadero y dos dormitorios.
Es una vivienda óptima para solares estrechos, a partir de los 12 metros de ancho. Cuenta con una cimentación de hormigón armado «in situ». El resto de la estructura es también de hormigón, con acabados exteriores pintados de color a elegir.
Dispone de una cubierta plana transitable, e incluye terraza con barandilla, carpintería exterior de aluminio (incluidas persianas con motor en los dormitorios), carpintería interior (puertas interiores batientes), cerramientos interiores y pavimento de parquet laminado.
El alto grado de industrialización en los procesos de construcción hace posible un muy buen aislamiento térmico. Además, la inercia térmica del hormigón aumenta la sensación de confort.
Cuenta con aislamiento de lana mineral, así como con sistema de aerotermia aire-aire por bomba de calor reversible más fancoils ocultos. Incluye también un radiador eléctrico toallero en cada baño, así como sistema de ventilación e instalación de red de saneamiento separativa de aguas pluviales y residuales. También está incluida la instalación básica de telecomunicaciones.
Incluye la instalación eléctrica básica, mobiliario de cocina (incluidos algunos electrodomésticos, como el horno, placa de inducción, campana extractora y lavavajillas), y baño completo (lavabo, espejo, inodoro, plato de ducha o bañera, grifería y accesorios como mamparas o toallero).
Se trata de una vivienda smart que permite la configuración de funciones inteligentes desde un teléfono o tablet, pudiendo controlar la iluminación, las persianas, el clima la seguridad.













