Esta vivienda cuenta con dos plantas, la planta baja tiene 80m2 y la primera planta 75m2, sumando un total de 155m2. Su precio es de 229.870€ y 261.270€ en el caso de ser Pasiva.
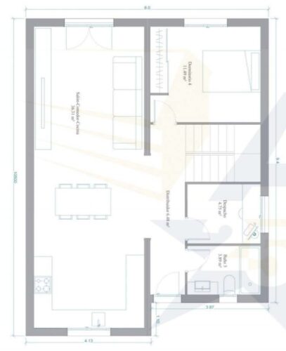
La planta baja dispone de un espacio unificado para el salón-comedor y cocina. En ella encontramos también un baño principal, un despacho para el trabajo y un dormitorio. Al subir a la primera planta encontramos el resto de dormitorios. Hay un total de 3 en esta planta, dos de ellos con baño propio y el principal con vestidor.
La casa dispone de ventanas de PVC con color blanco de serie. Cuentan con acristalamiento triple y doble cámara de argón (gas aislante), con factor solar predefinido. La puerta de entrada, de seguridad, es de PVC con sistema de gran hermeticidad. Las ventanas incluyen persianas aislantes motorizadas en color carpintería.
Las puertas interiores de la casa son de madera maciza, lacadas o barnizadas. Los frentes de armario tienen puertas correderas de tablero melaminado y separadores, barra y balda de maletero. Los dormitorios tienen un armario empotrado cada uno cuyo revestimiento interior es de tablero melaminado.













