La Casa Modular Villa Geko es una moderna vivienda unifamiliar con un diseño minimalista y moderno muy atractivo. Tiene una superficie total de 136m2 repartidos en dos plantas.
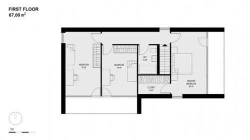
La planta inferior se compone casi en su totalidad del salón-cocina, totalmente abierto siendo muy espacioso y acogedor, también tiene un baño y un recibidor. Con una superficie de 69m2. La planta superior tiene un baño, dos habitaciones individuales y una habitación estilo suite con su propio closet. Con una superficie de 67m2.
La vivienda está fabricada con acero, con una climentación de hormigón armado. Las paredes son de yeso laminado, consiguiendo así el aislamiento térmico y acústico. La instalación eléctrica es muy eficiente por lo que tiene un consumo de perfil bajo.
Además, los ventanales y el diseño permiten una gran iluminación natural, reduciendo así la necesidad de luz eléctrica durante la mayor parte del día.














