Este modelo de vivienda unifamiliar con certificación pasiva tiene un total de 150m2 repartidos en dos plantas. La construcción en seco permite la rápida ejecución de la vivienda en 5 meses. Su precio es de 210.000€
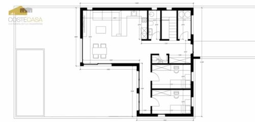
La planta baja está dividida en dos partes. Por un lado está la zona de día formada por el salón-comedor y la cocina abierta, el baño y un cuarto de lavadoras. Por otro, encontramos dos habitaciones con cama individual. En la primera planta se encuentran el resto de habitaciones, siendo 2 con cama de matrimonio, una de ellas con baño particular.
Se utiliza arquitectura bioclimática con el sistema constructivo de entramado ligero de madera, altamente aislada. Debido a su gran aislamiento (30cm aproximadamente) tienen un consumo energético muy bajo (a partir de 80% de amortización en la factura de luz).
Tanto las paredes interiores, exteriores y los techos tienen una composición en capas, en la cual la carcasa de toda la estructura está formada por Vigas de Madera calibrada y secada y lleva un tratamiento de insecticida, fungicida y retardante de fuego.















