La Casa Pasiva Bádames es una vivienda de tipo unifamiliar. Tiene una superficie de 119m2 y está construida con madera.
El sistema constructivo es de entramado ligero de madera de abeto, con acabado en madera machihembrada y zócalo de aplacado de piedra.
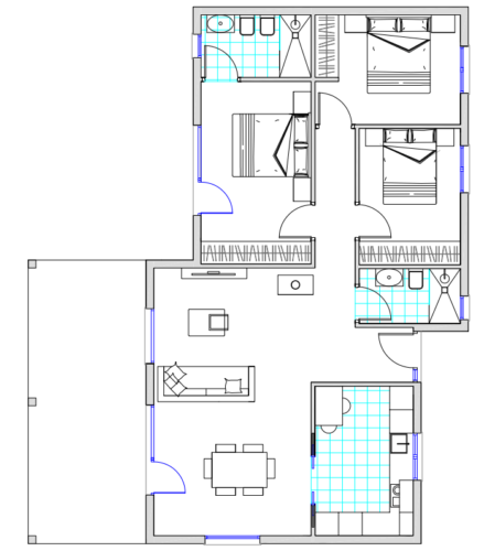
Cuenta con un amplio salón-comedor, una cocina completa, dos dormitorios dobles, un baño, y un dormitorio estilo suite con su propio baño. Además de un porche exterior.
Tiene una certificación energética excelente, de Clase A +. Además del certificado Passivhaus.














