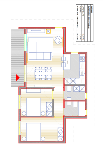
La Casa Pasiva Barria 2 es una vivienda de tipo unifamiliar. Tiene una superficie de 76m2 y está construida con madera.
El sistema constructivo es de entramado ligero de madera de abeto, con acabado exterior fachada ventilada de madera machihembrada y zócalo de aplacado de piedra.
Cuenta con un amplio salón-comedor, una cocina completa, dos dormitorios dobles, un baño, y un trastero. Además de un porche exterior.
Tiene una certificación energética excelente, de Clase A +. Además del certificado Passivhaus.














