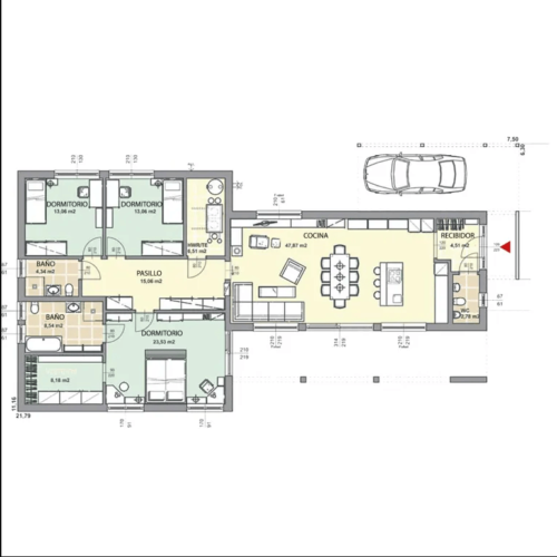
Este modelo de vivienda unifamiliar cuenta con un total de 177m2 que se reparten en una planta baja.
Tras cruzar el recibidor encontramos el espacio reservado para el salón-comedor y cocina, teniendo este una superficie de 47,87m2. En cuanto a las habitaciones, dispone de 3 dormitorios en total. El principal, de 23,53m2, cuenta con cama de matrimonio así como con baño y vestidor propios. Las otras dos miden 13,06m2 y comparten ambos un mismo baño. Dispone también de un baño principal ubicado junto al recibidor.
La estructura es de acero galvanizado tratado en zinc, resistente a cambios de temperatura drásticos, antisalitre, anti-sísmica y resistente al paso del tiempo. El espesor del perfil de acero de la pared de carga es de 3 mm, cumpliendo la normativa sísmica y la legislación vigente.
Las ventanas cuentan con doble apertura y doble cristal 4/16/4 de aluminio. Dispone de puertas interiores con colocación y puerta principal exterior de seguridad.
El modelo se puede modificar al gusto del cliente tanto en dimensiones como en su distribución. De modo que nuestros clientes adquirirán una casa personalizada hecha a su medida












