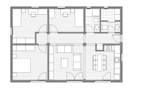
Este modelo de 1 planta es ideal para pequeñas familias que desean tener su primera vivienda a un coste reducido. Es fácilmente ampliable en un futuro, tanto en planta baja como en planta primera. Tiene un total de 96m2 que se reparten por las distintas estancias de la casa.
Al entrar por la puerta principal nos encontraremos en el pasillo-recibidor que da acceso al resto de estancias de la vivienda. Primeramente, a la derecha tendremos dos cuartos de baño. Por otra parte, a la izquierda se encuentra el salón-comedor y la cocina, organizado todo en un mismo espacio amplio. Por último, al fondo están las habitaciones, 2 individuales con escritorio para el estudio y una matrimonial.
La envolvente principal de la casa está formada por entramados y vigas de madera certificada de gran resistencia, incorporando en su interior aislamiento de altas prestaciones.
En cuanto a los acabados exteriores, ofrecemos un catálogo con una gran selección de diferentes opciones. Como opción estándar tenemos acabado en mortero acrílico, de color a elegir, sobre tablero de fibrocemento y cámara de aire ventilada.
Para los acabados interiores, tenemos diferentes posibilidades que ofrecer. La estándar cuenta con solado de madera laminada en todas las estancias y gres porcelánico en cuartos húmedos, más pintura plástica lisa sobre tablero de yeso laminado en todos los muros, tabiques y techos, salvo en cuartos húmedos, que se coloca azulejo porcelánico.













