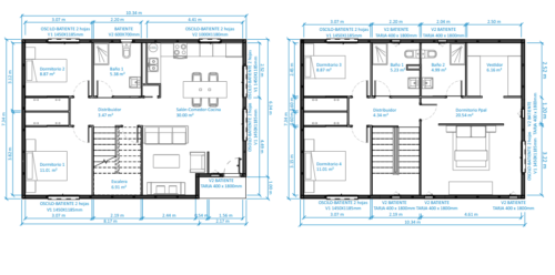
Esta vivienda unifamiliar está construida en dos plantas, ambas con 75’90m ² sumando un total de 151’80m ². En la planta baja se encuentra el salón-comedor y cocina, además de 2 dormitorios y un baño. Al subir las escaleras, en la primera planta encontramos un dormitorio principal con baño y vestidor propios. También hay otros 2 dormitorios y otro baño común. Todo esto hace un total de 5 dormitorios y 3 baños (uno de ellos privado).
La tabiquería es de placa de yeso laminado de 13mm a ambos lados con perfilería de 47mm y lana de roca intermedia de 50mm. Y tiene un acabado de pintura plástica lisa (dos opciones de color a elegir por el cliente), y revestimiento cerámico.
La puerta de entrada a la casa tiene perfiles de acero, plafonada y con cerradura de seguridad. Mientras, las puertas interiores son semi-macizas con hoja lacada en blanco, haya o roble. Las puertas cuentan con rodapié de madera a juego con puertas de paso.
El esquema estructural está diseñado con pilares y vigas de acero. Tiene un entramado de perfiles de acero para la elaboración de cerchas con el fin de salvar grandes luces y conseguir espacios diáfanos. Además, utilizamos paneles multicapa con aislamiento térmico de poliuretano inyectado, con un acabado con relieve de imitación teja.












