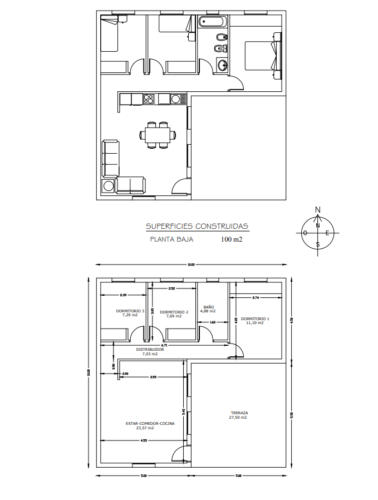
El modelo de vivienda unifamiliar Bilbao tiene una superficie total de 100m2 en una planta baja. Cuenta también de un porche en el exterior de 27,50m2.
La puerta principal nos permite la entrada al salón-comedor y cocina, que se encuentran en un mismo espacio compartido de 23,57m2. A continuación, un pasillo-distribuidor de 7,03m2 nos va dirigiendo hacia las 3 habitaciones. El dormitorio principal tiene 11,10m2 mientras que los individuales tienen 7,29m2 y 7,69m2. Entre ellos se encuentra el baño principal con una medida de 4,88m2.
El grosor de las paredes exteriores es de 225 mm, distribuidos entre el pladur interior, tablero OSB 3 de 10 mm, aislamiento de lana de roca dentro de la estructura portante de madera de 50×140 mm, tablero OSB 3 de 15 mm, tela barrera de vapor, listones para crear una cámara de aire, tablero OSB 3.
Las ventanas a utilizar son de PVC con cristal tipo Climalit, con persianas incluidas, mientras que las puertas son de madera de pino, y las puertas acristaladas incorporan contrapuertas.
El suelo para el interior de la casa puede variar dependiendo de las preferencias del cliente. Puede ser de tarima de madera o de gres. Teniendo en cuenta que en baño y cocina será de gres, debido a la utilidad de esas estancias.














