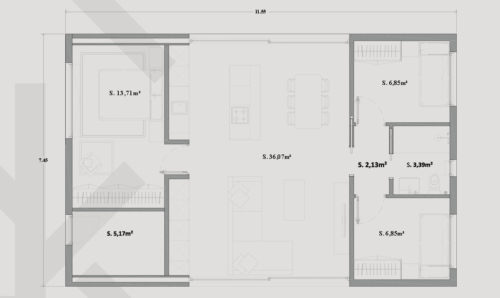
La Casa Prefabricada Carson es una vivienda de tipo unifamiliar, construida con madera. Tiene una superficie de 86m2 repartida en una planta.
Cuenta con un amplio salón, con un comedor-cocina completo, dos habitaciones individuales, una habitación doble y dos baños. Además tiene un trastero.
El revestimiento de las paredes dotan a la vivienda de una buen aislamiento térmico. Además, para la iluminación se utilizan LED de bajo consumo, aumentando mucho la eficiencia de la casa.
Tiene un certificado energético de clase A+.














