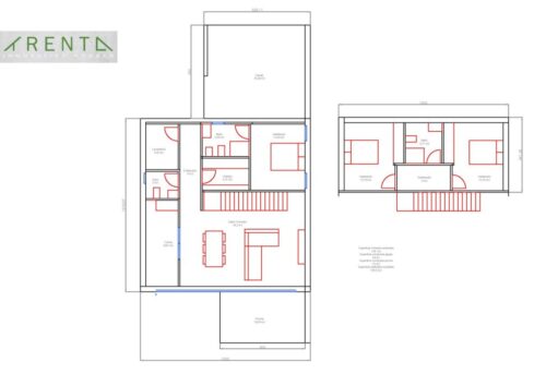
El modelo de vivienda unifamiliar Arteixo tiene una superficie total de 145m2 en dos plantas, de los cuales hasta 128m2 son útiles. Además, incluye una terraza de 30m2 y un garaje para guardar los vehículos de 50m2.
En la planta baja encontramos salón con una altura interior que llega a los 6 m. También consta de un despacho volado y una cristalera inmensa que hará que tu día a día sea como vivir en una postal. Esta planta también dispone de cocina, baño y un dormitorio principal con cama de matrimonio.
La primera planta, recoge el resto de habitaciones, siendo 2 individuales con un baño compartido ubicado entre ambas.
En cuanto al acabado exterior, en este caso se ha elegido una piedra negra que nos recuerda a la pizarra combinada con madera natural. Pero esto es sólo una de las posibilidades que planteamos, pues el modelo es totalmente personalizable.
Esta vivienda se plantea mediante nuestro sistema constructivo de piedra de gran formato, pero se puede realizar también con nuestro sistema de hormigón prefabricado o hormigón in situ.
Como todas nuestras viviendas como mínimo obtiene una certificación energética A, que podrá verse incrementada hasta llegar a los estándares de Passive House si el cliente así lo demanda















