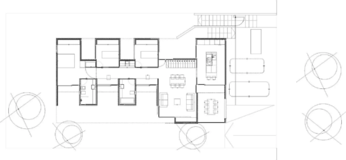
Es una vivienda de tipo unifamiliar. Tiene una superficie de 108m2 y está construida con acero y madera.
Esta vivienda se ha desarrollado con una relación abstracta con el paisaje. Su textura y color hacen que su entorno tome aún mayor presencia.
Cuenta con un amplio salón-comedor, separado de una cocina completa, dos habitaciones individuales y una estilo suite, además de dos baños.
El inteligente uso de ventanales alrededor de toda la vivienda la dotan de una gran iluminación natural.
Por último, tiene una certificación energética excelente, de Clase A+.














