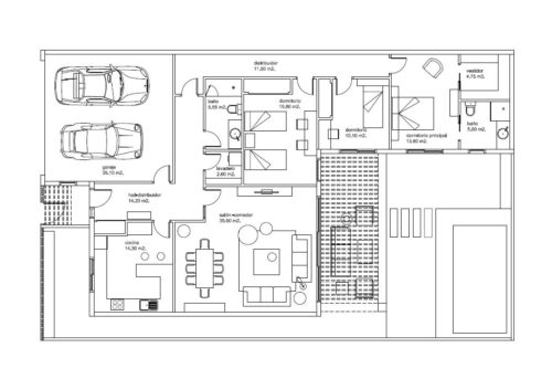
La Casa Prefabricada Gran Modular es una vivienda de tipo unifamiliar de una sola planta. Está fabricada con hormigón y tiene una superficie de 140m2 de vivienda, 36 m2 de garaje y 24m2 de porche. El tiempo de construcción es de 1 a 3 meses.
Cuenta con una habitación individual, otra habitación con dos camas y una habitación doble, dos baños con un lavadero, un vestidor, un amplio salón-comedor, una cocina completa e incluso un garaje con espacio para dos vehículos.
Todas sus habitaciones dan al jardín y zona de porche, siendo su piscina uno de sus mayores atractivos.
Su diseño de exterior está basado en un hormigón blanco dándole distintos formatos a sus piezas para hacerla sencilla y elegante.
Además los acabados son a elección del cliente y para el ahorro energético cuenta con aislamiento térmico superior, aprovechamiento solar y ventilación cruzada natural.













