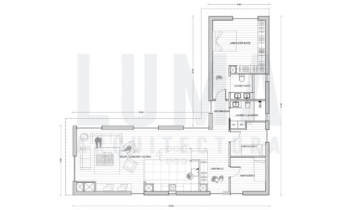
La casa prefabricada modelo LUMA-127 es una vivienda de tipo unifamiliar con una única planta. Su diseño en forma de L aprovecha muy bien el espacio y sirve para separar las habitaciones del resto de la casa. Su superficie es de 127m2.
Cuenta con dos habitaciones normales con un baño, y una habitación estilo suite con su propio baño. Además tiene un vestíbulo y un salón-comedor-cocina todo en uno.
La vivienda está fabricada con madera y tiene un diseño totalmente personalizable. Tiene además un alto nivel de eficiencia energética, de clasificación A.













