La casa prefabricada modelo LUMA-189 es una vivienda de tipo unifamiliar de dos plantas. Está hecha de madera con un estilo moderno y cuenta con dos plantas, con una superficie total de 189m2. El tiempo de construcción estimado es de 6 meses.
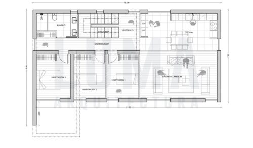
La planta baja cuenta con dos habitaciones normales y una estilo suite, un baño y un vestíbulo. Separados de estas, se encuentra el salón-comedor y la cocina, con todas las comodidades necesarias. En la segunda planta se encuentra otra habitación estilo suite, con su propio vestidor y baño, además de una amplia terraza solarium.
La vivienda está fabricada con madera, con un diseño completamente personalizable y una alta eficiencia energética, de clasificación A.













