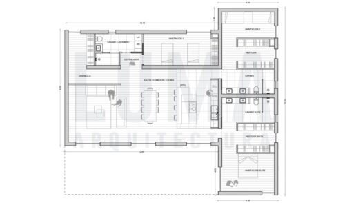
La casa prefabricada modelo LUMA-195 es una vivienda de tipo unifamiliar de una sola planta, con un acabado y diseño muy acogedores, que combinan todo lo bueno del aspecto rústico y el estilo moderno. Tiene una superficie total de 196m2. La duración de obra es de aproximadamente 6 meses.
Cuenta con 3 baños, 2 habitaciones normales, y una estilo suite, con su propio vestidor y baño. Las dos habitaciones normales tienen 2 camas cada una, permitiendo vivir a un total de 6 ocupantes. También tiene un amplio comedor-cocina, con una zona apartada para el salón y un porche de 48m2.
El diseño es completamente personalizable y tiene una alta eficiencia energética, de clasificación A.













